
Nicht jedes Grundstück ist ein Glücksgriff auf den ersten Blick. In Ehlershausen – rund 30 Minuten nordöstlich von Hannover – war genau so ein Fall: günstig zu haben, aber kompliziert geschnitten. Viele hätten abgewunken. Wir haben darin eine Chance gesehen.
Gemeinsam mit der Bauherrin entsteht hier ein durchdachtes Wohnhaus, das zeigt: Wer früh klug plant, spart später richtig – ohne auf Wohnqualität zu verzichten.
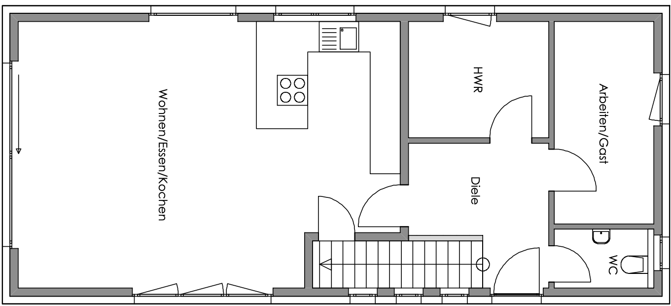
Die Herausforderung: ein schmal geschnittenes Grundstück mit ungünstigem Zuschnitt. Eine klassische Kubatur? Kaum unterzubringen. Ein typisches Haus „von der Stange“? Fehlanzeige.
Unsere Herangehensweise:
Am Ende entsteht ein Haus mit klaren Linien, durchdachter Raumaufteilung und überraschend niedrigen Baukosten – trotz des schwierigen Ausgangspunkts.

Wer neu baut, will oft alles – offen, großzügig, modern. Aber: Die Realität auf dem Grundstück entscheidet mit.
Deshalb ist es wichtig, Planung, Bauleitung und Ausführung zusammenzudenken. Genau das macht bautakt:
In Ehlershausen wird daraus ein Haus, das nicht nur gut aussieht, sondern auch gut funktioniert.
Als Generalunternehmer in Hannover und Region begleiten wir Bauherren von der Idee bis zur Schlüsselübergabe – so wie hier in Ehlershausen.
Dann holen Sie sich einen Partner an die Seite, der mitdenkt, mitplant und mitverantwortet.
bautakt übernimmt:
➡️ Jetzt unverbindlichen Termin vereinbaren – wir begleiten Sie vom ersten Grundstücksbesuch bis zum fertigen Neubau.

Wir nutzen Cookies für Statistik (z. B. Google Analytics). Sie können zustimmen oder nur notwendige Cookies erlauben. Details in der Datenschutzerklärung.